電話発信ボタン
株式会社ホーム・スタイルの公式Instagram

Instagram

株式会社ホーム・スタイルにお問い合わせ
2024年11月10日(日)

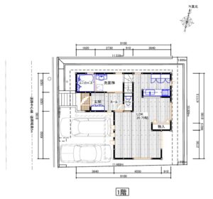
間取り(1階)

このページのトップに戻る